Gyllesystemer

Gyllesystemer med gyllepumper fra Fremtiden

Med det komplette udstyrsprogram til Fremtiden gyllepumper kan gyllesystemet opbygges efter behov

Muligheder vores gyllepumper giver

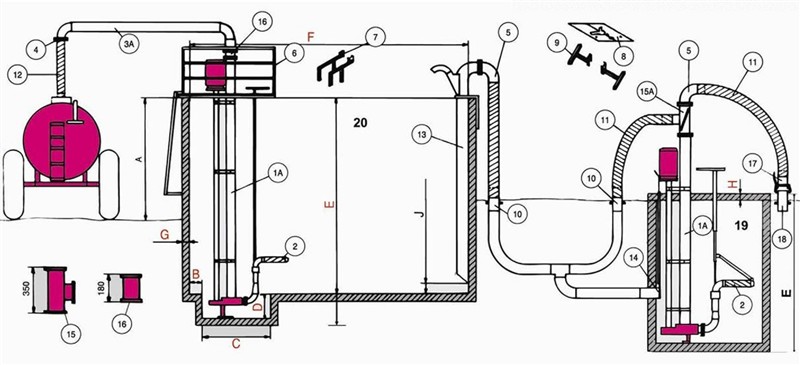
Nedenfor ses de muligheder Fremtiden Gyllepumper giver, når de indgår i et samlet gyllesystem.

Alle dele indgår i produktprogrammet.

1A: Pumpe
2: Omrører
3A: Fylderør
3B: Fylderør med stigning 800 mm
4: Slangestuds
5: 90 grader bøjning
6: Arbejdsplatform
7: Lagertankbeslag
8: Gulvplade
9: Fortankbeslag
10: Nedstøbningsrør til slange

11: Slange
12: Blød slange
13: Neddykket fylderør
14: Stophaner m/ ventil til frostsikring
15: 2-vejs ventil, støbejern eller rustfri
15A: 2-vejs ventil, støbejern eller rustfri ved bagskyl
15B: 3-vejs ventil, alternativ til 2-vejs ventil
16: Drejeled til fylderør
17: Hunkobling med slangestuds (Perrot)
18: Nedstøbningsrør med hankobling (Perrot)
19: Fortank
20: Lagertank

 A: Tankhøjde fra jordoverflade
B: Mål: tankvæg til sump, max. 200 mm
C: Sumpdiameter, min. Ø1000 mm
D: Sumpdybde, min. 250 mm
E: Tankdybde, mål: tankbund til overkant dæksel
F: Tankdiameter
G: Vægtykkelse
H: Dækseltykkelse
J: Mål: tankbund til udgang overpumpningsrør, max. 400 mm

FREMTIDEN PUMPS A/S

“Vi har markedets stærkeste inventar, som alt er 100% danskproduceret, fremstillet i højeste kvalitet og styrke ud fra vores erfaring, problemstillinger og løsninger gennem de sidste 30 år.”

Jeannette Skjødsholm
Fabrikschef / Indehaver

0
    0
    Din kurv
    Din kurv er tomTilbage til shoppen